INICIO
EMPRESA
SERVIÇOS
PRODUTOS
MEMORIAIS
OBRAS EXECUTADAS
CONTATO
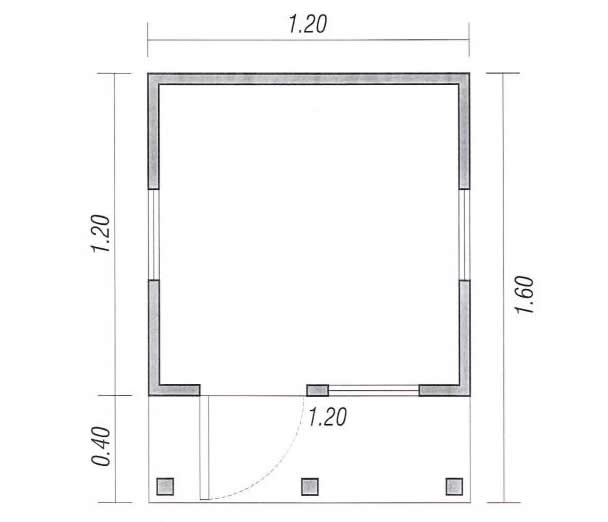
Modelo Maria Eduarda
Características
Escala:
Sem escala
Área total: 1.92m²