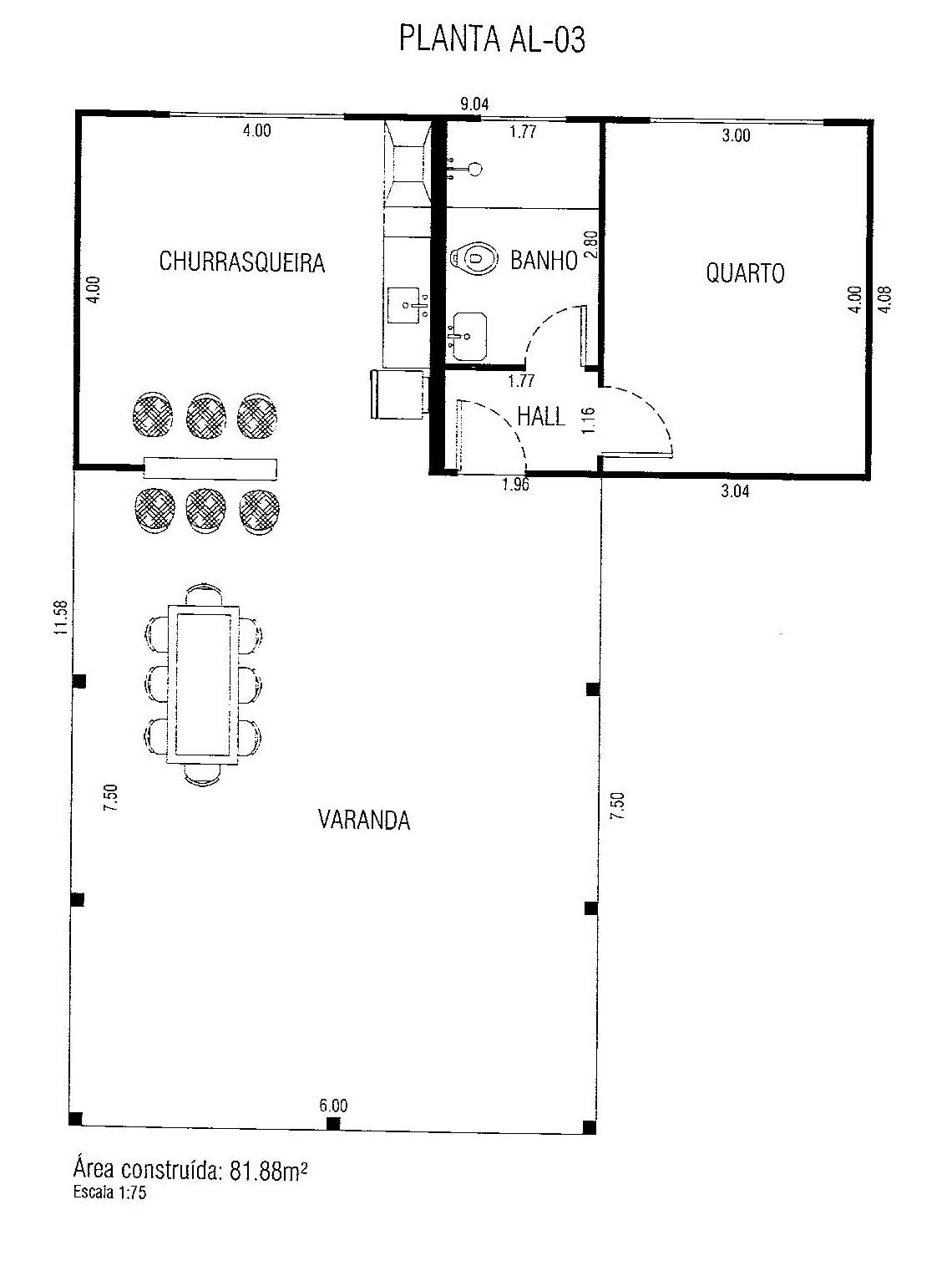
Planta AL3

Características

Área Construida: 81.88m² Escala: 1:75